Ишунь

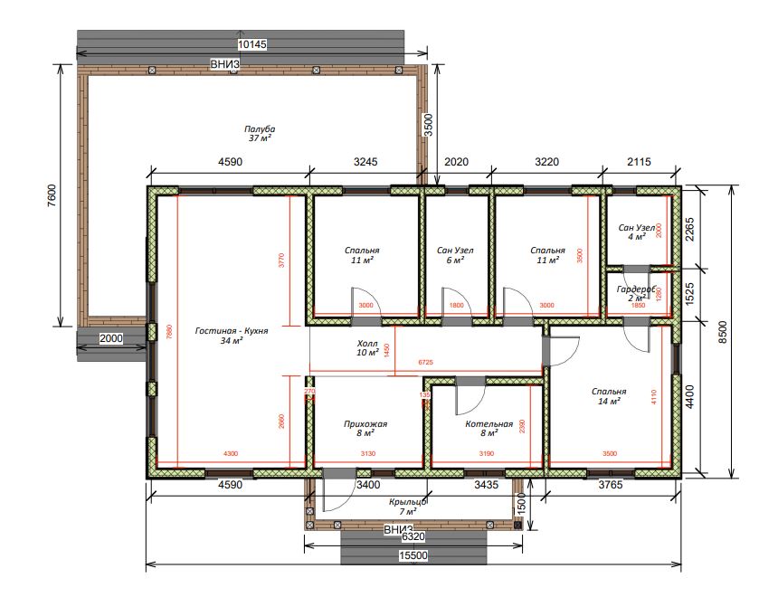
Проект "Ишунь" - это большой одноэтажный дом, в котором может комфортно расположиться семья из 4-5 человек. В данном доме предусмотрена гостиная-кухня, три изолированные комнаты, два санузла, гардероб, котельная-кладовая, тамбур, холл и просторная терраса. Большое количество окон в доме позволяет дневному свету свободно проникать в помещения и наслаждаться прекрасными видами. Данный проект отлично подойдет для многодетных семей.

3 комнаты

2 санузла

131,75 м2

6 585 000 

Планировка

Хотите изменить планировку?

Это совсем просто! Оставьте заявку и мы проведем Вам встречу с одним из наших архитекторов
и на основании Ваших пожеланий он создаст для Вас индивидуальные планировки.

Комплектация дома

Выберите подходящую для себя комплектацию

«Базовая»

Инженерные коммуникации

«Под ключ»

Фундамент

Наружная отделка

1 этаж

Внутренняя отделка 1-го этажа

Окна

Двери

Крыльцо и балкон

Кровля

Общестроительные работы

  • Фундамент: железобетонные забивные сваи, 150 х 150 х 3000 мм
  • Обработка огнебиозащитой: обвязка, черновой пол и лаги 1-го этажа
  • Отделка наружных стен 1-го этажа: ОСП 9 мм
  • Отделка наружных стен 2-го этажа: ОСП 9 мм
  • Отделка цоколя: нет
  • Обвязочный брус: 150 х 150 мм
  • Высота потолка: 2600 мм
  • Лаги пола 1-го этажа: доска 200 х 50 мм, шаг 580 мм
  • Черновой пол: доска 100 х 25 мм
  • Утепление пола: базальтовый утеплитель 35 кг/м3, 200 мм
  • Наружные несущие стены: доска 150 х 50, Брус 150 х 150 мм
  • Утепление наружных стен: базальтовый утеплитель 35 кг/м3, 200 мм перекрестное
  • Перегородки: доска 100 х 50 мм
  • Утепление (звукоизоляция) перегородок: базальтовый утеплитель 35 кг/м3, 100 мм
  • Лаги перекрытия 1-го этажа (потолок): доска 200 х 50 мм, шаг 580 мм
  • Утепление перекрытия (звукоизоляция): базальтовый утеплитель 35 кг/м3, 100 мм
  • Чистовой пол: шпунтованная доска 38 мм
  • Чистовой пол в с/у: Цементно-стружечная плита: 12 мм
  • Внутренняя отделка стен и перегородок: нет
  • Внутренняя отделка потолка: нет
  • Внутренняя отделка потолка в с/у: нет
  • Внутренняя отделка стен в с/у: нет
  • Тип окон: ПВХ BrusBox AERO 60 мм, фурнитура Fornax
  • Отливы: металлические
  • Подоконники: нет
  • Москитные сетки: на поворотно-откидные секции
  • Входная: металлическая с терморазрывом
  • Межкомнатные: нет
  • Пол: доска 90 x 45 мм без покраски
  • Ограждения перила: нет
  • Подшив потолка: вагонка 12 мм без покраски
  • Стропила: доска 150 х 50 мм
  • Утепление кровли: базальтовый утеплитель 35 кг/м3, 200 мм перекрестное
  • Кровля (вентилируемая): металлочерепица Grand Line, 0.45 мм
  • Снегозадержание: нет
  • Водосточная система: нет
  • Отделка свесов кровли: ПВХ софиты
  • Бытовка для рабочих: да
  • Бесплатная доставка до 100 км от Цеха: да
  • Вывоз строительного мусора: да

6 585 000 

Разводка ХГВС

Разводка канализации

Электромонтаж силовых и слаботочных систем

Отопление

Устройство вентиляции

Септик, скважина, кессон

  • Трубы ППР
  • Водорозетки
  • Коллекторы
  • Краны
  • Крепеж
  • Бойлер Аристон 100 л
  • Разводка открытого типа
  • Труба Политэк
  • Крепеж
  • Кабели ВВГнг-LS ГОСТ
  • Бокс для автоматов
  • Автоматы
  • УЗО
  • Гофра
  • Крепеж
  • Розетки / Выключатели Schneider Electric
  • Разводка открытого типа
  • Двухтрубная система
  • Труба ППР
  • Котел Stout / Viessmann
  • Коллекторы
  • Краны
  • Гидрострелка
  • Радиаторы Rifar
  • Группа безопасности
  • Незамерзающий теплоноситель.
  • Вентиляционный стояк с проходом сквозь кровлю
  • Вентилятор
  • Приточные клапаны
  • Рассчитываются индивидуально

1 480 000 ₽ 

к выбранной комплектации

Фундамент

Наружная отделка

1 этаж

Внутренняя отделка 1-го этажа

Окна

Двери

Крыльцо и балкон

Кровля

Общестроительные работы

  • Фундамент: железобетонные забивные сваи, 150 х 150 х 3000 мм
  • Обработка огнебиозащитой: весь каркас
  • Отделка наружных стен 1-го этажа: имитация бруса с покраской
  • Отделка наружных стен 2-го этажа: имитация бруса с покраской
  • Отделка цоколя: цокольные панели
  • Обвязочный брус: 150 х 150 мм
  • Высота потолка: 2600 мм
  • Лаги пола 1-го этажа: балка 200 х 150 мм, шаг 580 мм
  • Черновой пол: доска 100 х 25 мм
  • Утепление пола: базальтовый утеплитель 35 кг/м3, 250 мм перекрестное
  • Наружные несущие стены: доска 150 х 50, Брус 150 х 150 мм
  • Утепление наружных стен: базальтовый утеплитель 35 кг/м3, 200 мм перекрестное
  • Перегородки: доска 100 х 50 мм
  • Утепление (звукоизоляция) перегородок: базальтовый утеплитель 35 кг/м3, 100 мм
  • Лаги перекрытия 1-го этажа (потолок): балка 200 х 150 мм, шаг 580 мм
  • Утепление перекрытия (звукоизоляция): базальтовый утеплитель 35 кг/м3, 100 мм
  • Чистовой пол: обрешетка доска 100х25мм, два слоя фанеры по 10мм, ламинат Артенс Тангай 33 класс
  • Чистовой пол в с/у: цементно-стружечная плита 12 мм
  • Внутренняя отделка стен и перегородок: имитация бруса без покраски
  • Внутренняя отделка потолка: вагонка 12 мм
  • Внутренняя отделка потолка в с/у: натяжной ПВХ
  • Внутренняя отделка стен в с/у: гипсокартон влагостойкий 12 мм
  • Тип окон: ПВХ Rehau 70 мм, фурнитура Roto
  • Отливы: металлические
  • Подоконники: пластиковые
  • Москитные сетки: на поворотно-откидные секции
  • Входная: металлическая с терморазрывом
  • Межкомнатные: заказчик выбирает дверной комлект и фурнитуру, в рамках бюджета 16000 рублей/комлект
  • Пол: лиственница (вельвет)
  • Ограждения перила: доска 100 х 50 мм
  • Подшив потолка: имитация бруса с покраской
  • Стропила: доска 200 х 50 мм
  • Утепление кровли: базальтовый утеплитель 35 кг/м3, 250 мм перекрестное
  • Кровля (вентилируемая): металлочерепица Grand Line, 0.45 мм
  • Снегозадержание: Grand Line в цвет кровли
  • Водосточная система: Grand Line в цвет кровли
  • Отделка свесов кровли: имитация бруса с покраской
  • Бытовка для рабочих: да
  • Бесплатная доставка до 100 км от Цеха: да
  • Вывоз строительного мусора: да

8 780 000 ₽ 

Наши работы

Собственное производство

Для каждого дома, беседки и бани - весь используемый материал готовится и обрабатывается на нашем собственном производстве. 

Гарантия 5 лет

На общестроительные работы 2 года,
на деревянный каркас 5 лет, на окна 20 лет, на фундамент 50 лет.

Сервис

Каждому клиенту мы уделяем особое внимание и подходим индивидуально, внимательно выслушиваем все пожелания и отвечаем на все вопросы с добродушием

Опыт работы 16 лет

Все наши специалисты имеют глубокое теоретическое понимание, сотни раз применённое на практике.

Четкий и налаженный процесс выполнения работ

Мы наладили процесс таким образом, что все наши бригады заканчивают строительство домов с периодичностью не более 10 дней и приступают к следующим проектам

Постоянный
технический надзор

Бригадир приезжает на строительную площадку и контролирует четкость выполнения работ в соответствии с проектной документацией, минимум два раза
в неделю.

Почему выбирают нас?

Создайте дом своей мечты

Пришлите нам свои чертежи или просто оставьте заявку и наши специалисты с удовольствием подберут желанный для Вас проект!

Часто задаваемые вопросы

Контакты

ТЕЛЕФОН
+7 (916) 509-81-80
+7 (978) 448-01-70
+7 (979) 001-61-23

АДРЕС ПРОИЗВОДСТВА
Республика Крым, поселок Первомайское, улица 87й дивизии, дом 9.

АДРЕС ВЫСТАВКИ
Республика Крым, Симферопольский район, с.Мирное, улица Евпаторийская, 125, Территория ТЦ "METRO".

EMAIL
skartell@yandex.ru

Реквизиты

ИНДИВИДУАЛЬНЫЙ ПРЕДПРИНИМАТЕЛЬ ТКАЧ ДМИТРИЙ АНАТОЛЬЕВИЧ

ИНН
910606812724

ОГРН
321911200056096

Юридический адрес организации
Респ Крым, 296300, Первомайский р-н, с Упорное, ул Краснодарская, д 3.

Расчётный счёт
40802810338000000022

Банк
ПАО Сбербанк

Корреспондентский счет банка
30101810400000000225

ИНН банка
7707083893

БИК банка
044525225

Юридический адрес банка
Москва, 117312, улица Вавилова, д.19

© 2026 «СК Артель».  Все права защищены.